
Портфолио
PENTHOUSE APARTMENT
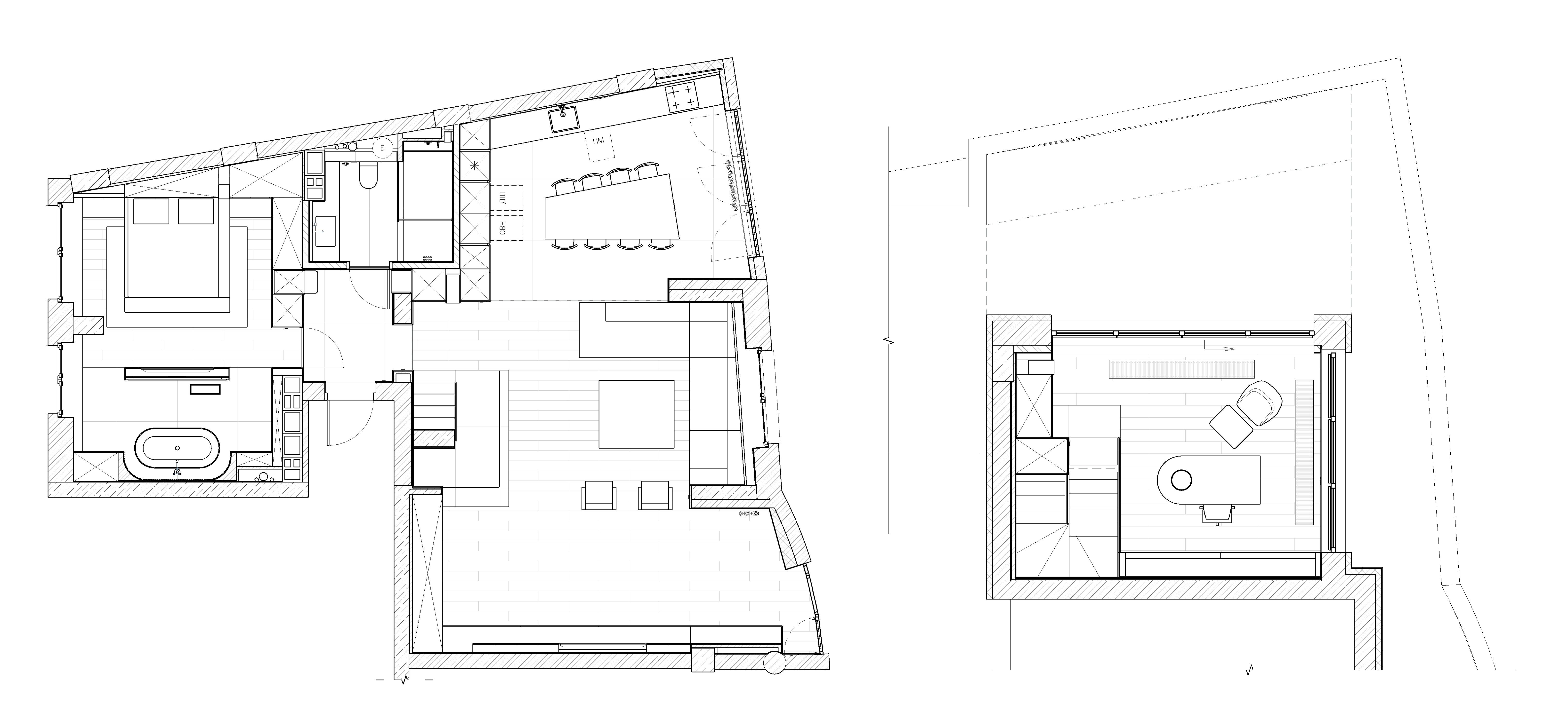
Проект двухуровневой квартиры с собственной террасой на крыше разрабатывался для одинокого молодого человека для комфортной работы, отдыха и приема гостей. Основные материалы, да и весь интерьер, можно назвать брутальными: широкоформатный керамогранит, имитирующий грубый камень, темные стеновые панели, натуральный шпон, чёрное глянцевое стекло, приглушённые оттенки мебели. Интерьер получился функциональным и сдержанным, подстать мужскому характеру.
Дизайнер
Лев Кононов, Клыч Низамов
Архитектор
Анна Алешкевич
Год
2024
Площадь
123 кв.м.
Локация
ЖК Минск Мир


































