
Портфолио
MINT APARTMENT
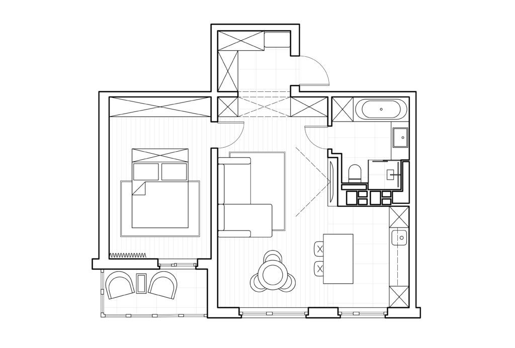
Интерьер разрабатывался для молодой пары. Панельный дом новой серии в Новой Боровой, квартал Северное Сияние. Небольшая, но функциональная еврооднушка с большим объемом хранения, кухонным островом, полноценной гостинной. Удалось запроектировать полупроходную гардеробную в спальне. Яркие цветовые пятна, светлые стены и неординарные решения с лайтбоксами в зоне кухни и прихожей.
Дизайнер
Лев Кононов
Архитектор
Никита Шведов
Год
2019
Площадь
59 кв.м.
Локация
ЖК Новая Боровая



















