
Портфолио
MARKSA APARTMENT
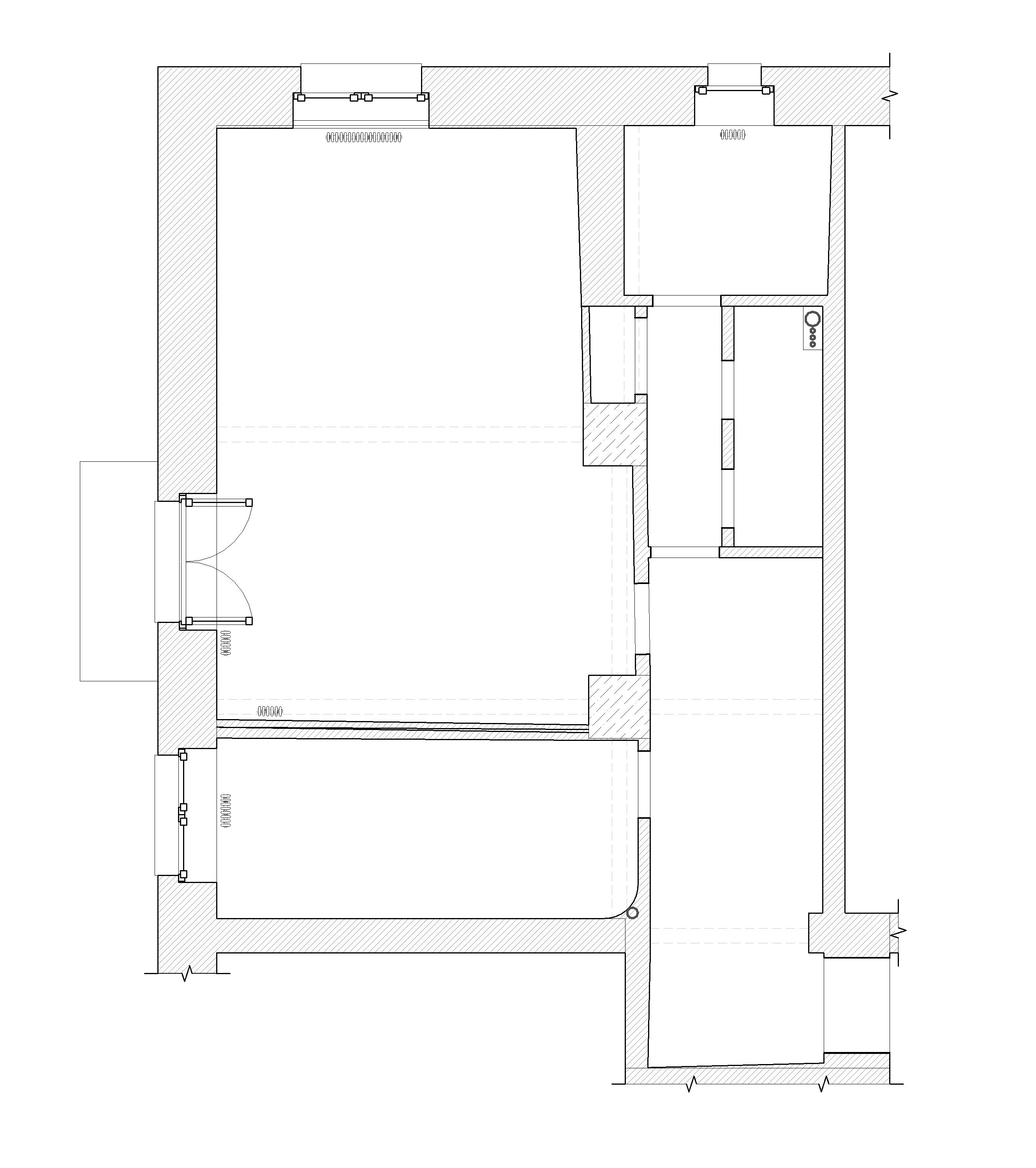
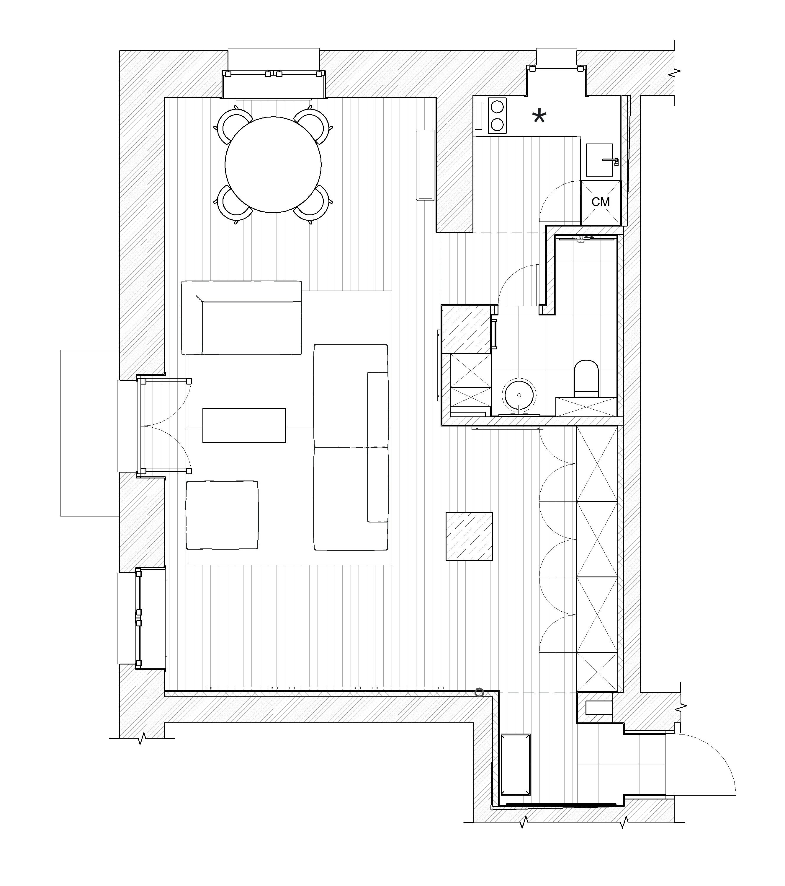
Арт-лофт с историческом центре города. Желанием заказчика было максимально сохранить аутентичные элементы пространства. Так появились в интерьере открытые перекрытия, инженерные коммуникации и чугунные балки на потолке, а также “живой” кирпич несущих стен. Наиболее примечательная особенность интерьера — роспись стен в стиле каллиграффити.
Дизайнер
Лев Кононов
Архитектор
Никита Шведов
Год
2019
Площадь
57 кв.м.



















