
Портфолио
DIAGONAL APARTMENT
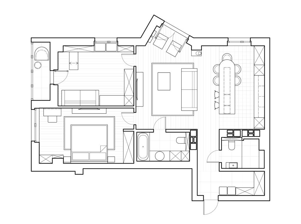
Евродвушка для молодой семьи из 2х человек, Новая Боровая. Стиль можно описать как современный с элементами mid century. Натуральные материалы, естественные, приглушенные оттенки. Самый запоминающийся фрагмент квартиры — кухня. Она построена по принципу модульности: МДФ фасады покрыты регулярной сеткой фрезеровки 20*20 см, которая соответствует размеру наполного керамогранита-моноколора.
Дизайнер
Лев Кононов
Архитектор
Наталья Загаевская
Год
2020
Площадь
89 кв.м.
Локация
ЖК Новая Боровая































