
Портфолио
COFFEE APARTMENT
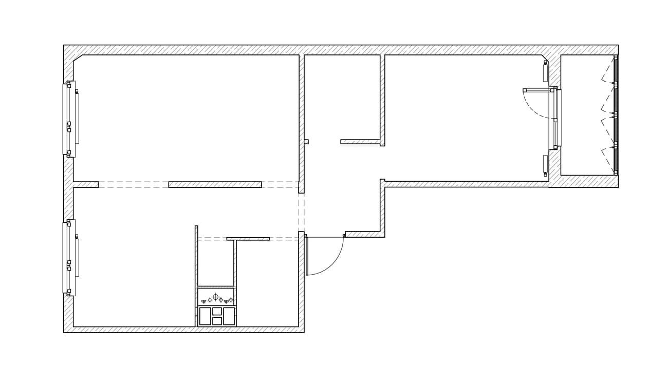
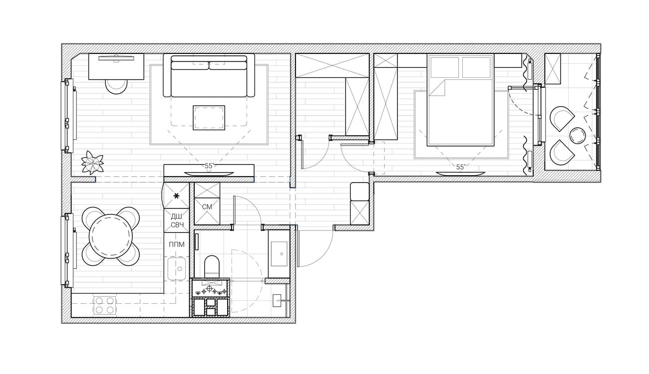
Двухкомнатная квартира в панельном доме для молодой семьи из 2х человек. Деление кухни и гостиной на 2 яруса по горизонтали вызвано архитектурой помещений и конструктивными особенностями квартиры: проемы были сформированы геометрией стандартных панелей и менять ее не было возможности. В целом монохромная цветовая гамма разбавлена муралами с акцентными цветовыми пятнами.
Дизайнер
Лев Кононов
Архитектор
Наталья Загаевская
Год
2020
Площадь
58 кв.м.
Локация
Новая Боровая






















