
Портфолио
CIRCLE APARTMENT
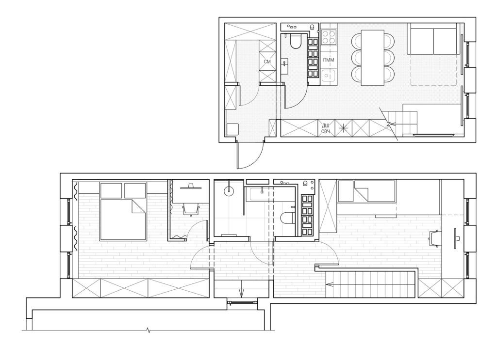
Двухуровневая квартира для молодой семьи в ЖК Новая Боровая, Центральный парк. Каждое помещение этого объекта имеет свои отличительные и уникальные черты, но, несмотря на это, интерьер в целом объединён общим стилистическим решением. Дизайн наполнен цветом и авторскими деталями. Гипсовые блоки на фартуке кухни были разработаны и произведены нашей студией специально для данного проекта. То же можно сказать о подвесном светильнике над обеденной зоной и накладных вертикальных ручках для корпусной мебели.
Дизайнер
Лина Кострова, Лев Кононов
Архитектор
Никита Шведов
Год
2024
Площадь
77 кв.м.
Локация
ЖК Новая Боровая






























